Leilighetene
Boligvelger
Beliggenhet
Galleri
Dokumenter
Nyheter
Meld interesse
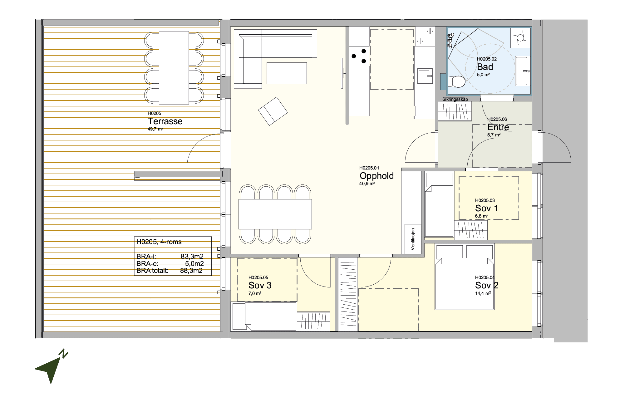
H0205
Meld interesse
Kjøp
Etasje
2
Soverom
3
BRA-i m²
83,3
BRA-e m²
5
BRA m²
88,3
Balkong m²
49,7
Pris
5 400 000
Totalpris
5 428 990
Status
Ledig
Parkeringsplass
1
Prospekt
Prisliste
Meld interesse
Fyll inn navn
Fyll inn telefonnummer
Fyll inn e-post
Jeg ønsker å bli kontaktet i samtykke med denne
personvernerklæringen
Send
Kontakt megler
Jørgen Viken
Eiendomsmegler
994 82 197
jorgen.viken@em1.no
Stian Knutsen
Avdelingsleder
958 66 162
stian.knutsen@em1.no
Powered by Plyo
Tilbake til Boligvelger